Concurso ZOW ESPAÑA 2009

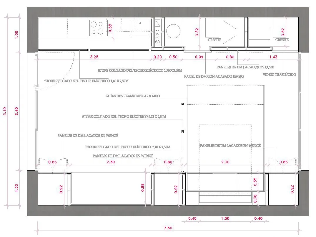
Prototipo de vivienda flexible de 40 m2

¿Se puede vivir, trabajar, incluso celebrar fiestas concurridas en un espacio de 40 m²?

Este prototipo de vivienda pretende afirmar que SÍ, es posible.

Para ello es necesario optimizar los espacios de SERVICIOS y MOBILIARIO, concentrarlos en la menor superficie posible y liberar un amplio espacio diáfano de uso, concebido como una banda POLIVALENTE para desarrollar múltiples y diversas actividades. La movilidad y posición cambiante del mobiliario mediante sistemas de guías, rodaduras y elementos abatibles, permite la reconfiguración de los espacios según las necesidades específicas de cada actividad y que cada usuario la personalice según necesite descansar, trabajar, reunirse para trabajar, reunirse con amigos para hacer una fiesta,… o simplemente dormir.

Ir al contenido